Ga naar inhoud

Te koop: appartement Octaaf bouwnummer 19 ong 6544 NZ Nijmegen

Beschikbaar

Bezichtiging plannen

€ 434.500,- v.o.n.

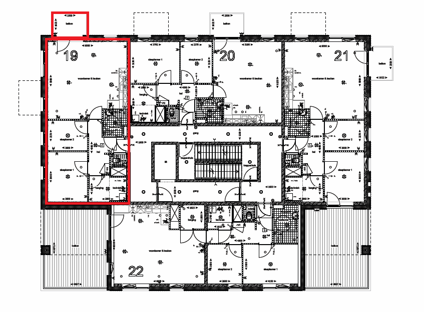
Op de vierde verdieping gelegen driekamerappartement van 72 m2 en een balkon op het zuidwesten van 4 m2.

Ideaal voor zowel kleine huishoudens als ouderen die gelijkvloers willen gaan wonen. Deze appartementen zijn modern, uiterst energiezuinig en gebouwd met hoogwaardige materialen. En dat in een parkachtige omgeving.

De appartementen hebben een gemeenschappelijke fietsberging op de begane grond alsmede een parkeerplaats. De appartementen worden fraai gebouwd met optimale isolatie A+++. De appartementen zijn voorzien van een warmtepomp die in de zomer ook kan koelen. De badkamer en het toilet worden compleet afgewerkt, een keuken zit niet bij de v.o.n. prijs inbegrepen. De appartementen zijn nog niet gebouwd en worden naar verwachting eind 2026 begin 2027 opgeleverd.

Het project wordt gerealiseerd aan de rand van de wijk Neerbosch-Oost, op loopafstand van het winkelcentrum en op 10 minuten loopafstand van het treinstation Nijmegen-Goffert waar op termijn de nieuwe wijk Winkelsteeg zal verrijzen.

  • 72 m2
  • 2

Kenmerken Octaaf bouwnummer 19 ong

Overdracht

Koopprijs€ 434.500,- v.o.n.
AanvaardingIn overleg

Oppervlaktes en inhoud

Woonoppervlakte72 m2
Inhoud254 m3

Bouw

SoortPortiekflat
BouwvormNieuwbouw
Dak typePlat dak
IsolatievormenVolledig geïsoleerd, HR glas
EnergielabelA+++

Indeling

Aantal verdiepingen1
Aantal kamers3
Aantal slaapkamers2
Aantal badkamers1

Maandlasten

Ligging Octaaf bouwnummer 19 ong

Voorzieningen

Centraal gelegen informatie over de buurt

Aantal inwoners

In de gemeente

173.557

Leeftijd

in percentages van totaal

Huishoudsamenstelling

in percentages van totaal

51%

20% NL

22%

20% NL

27%

20% NL

Vergelijkbaar woningaanbod