€ 395.000,- k.k.
Benedenwoning met tuin in hartje Nijmegen Oost!
Leuke benedenwoning uit 1906, in één van de meest geliefde wijken van Nijmegen: Nijmegen-Oost. Hier vind je de combinatie van karakter en stadse/dorpse gezelligheid – overal heel dichtbij, maar toch in een rustig straatje met alleen bestemmingsverkeer.
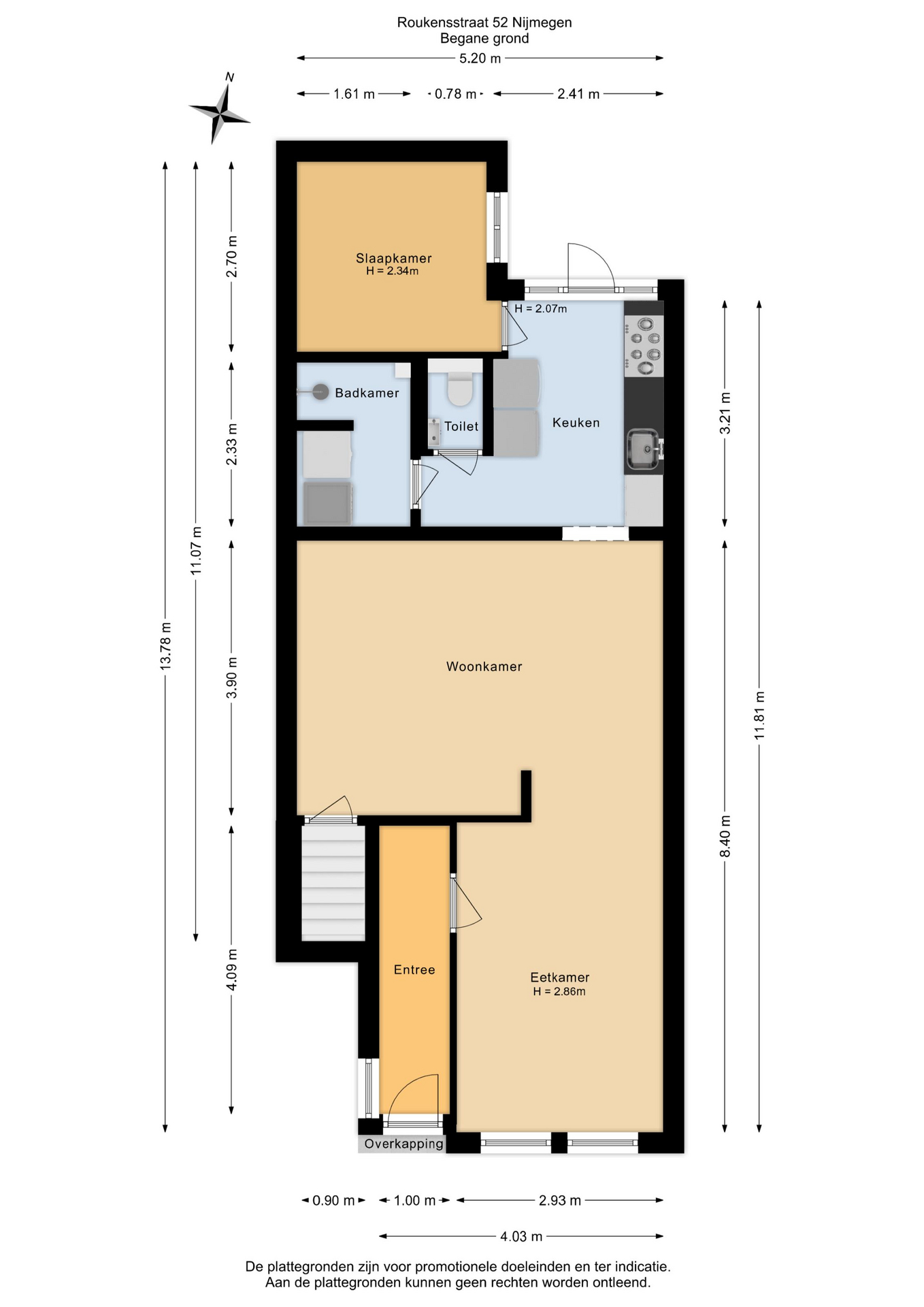
De woning beschikt over veel authentieke elementen, zoals houten vloeren en in de hal de originele vloertegels uit 1907. De lichte en ruime woonkamer heeft hoge plafonds en een open keuken, waar je tijdens het koken in contact blijft met de woonkamer. Aan de voorzijde bevindt zich het eetgedeelte en er is een aparte badkamer. Er is nu één slaapkamer, maar in het souterrain is eenvoudig een tweede slaapkamer of werkruimte te realiseren – ideaal voor thuiswerken of logees.
Aan de achterzijde bevindt zich de knusse stadstuin met de toegang naar een berging op souterrain niveau. Ideaal voor de opslag van tuinspullen.
Waarom Nijmegen Oost?
Nijmegen Oost staat bekend om zijn levendige sfeer, gezellige straatjes en een breed scala aan winkels, cafés en restaurants. Je wandelt naar de Ooypolder of het Kronenburgerpark en natuurlijk ligt het stadscentrum om de hoek. Niet onbelangrijk, ook het openbaar vervoer en uitvalswegen zijn goed bereikbaar.
Kortom: deze woning heeft de charme van begin 20e eeuw maar met het comfort en gemak van nu – een leuke kans om te wonen in één van de populairste wijken van Nijmegen!
Goed om te weten:
De woning is de laatste jaren verhuurd geweest en de eigenaar heeft er sindsdien niet meer gewoond. Om deze reden nemen wij een niet bewonings-clausule op. Ben je benieuwd wat dit precies inhoudt? Vraag het gerust aan de makelaar.
- 77 m2
- 2
Kenmerken Roukensstraat 52
Overdracht
| Vraagprijs | € 395.000,- k.k. |
|---|---|
| Aanvaarding | In overleg |
Oppervlaktes en inhoud
| Woonoppervlakte | 77 m2 |
|---|---|
| Inhoud | 289 m3 |
Bouw
| Soort | Benedenwoning |
|---|---|
| Bouwvorm | Bestaande bouw |
| Bouwjaar | 1906 |
| Dak type | Plat dak |
| Isolatievormen | Vloerisolatie, Dubbelglas |
| Energielabel | C |
Indeling
| Aantal verdiepingen | 2 |
|---|---|
| Aantal kamers | 3 |
| Aantal slaapkamers | 2 |
| Aantal badkamers | 1 |
Maandlasten
Ligging Roukensstraat 52
Voorzieningen
Centraal gelegen informatie over de buurt
Aantal inwoners
In de gemeente
173.557
Leeftijd
in percentages van totaal
Huishoudsamenstelling
in percentages van totaal
66%
20% NL
19%
20% NL
15%
20% NL