Ga naar inhoud

Te koop: woonhuis Rijnstraat 21 6851 AE Huissen

Beschikbaar

Bezichtiging plannen

€ 449.500,- k.k.

Rijnstraat 21 Huissen

Sfeervolle drive-in hoekwoning in het centrum van Huissen met schitterend uitzicht over dijk en uiterwaarden. Houd je van wonen in het bruisende centrum? Wil je graag een zonnig terras? Een woonkamer met heerlijk uitzicht over de dijk en uiterwaarden? Met het voordeel van twee eigen parkeerplaatsen en een royale garage? Dan zit je hier goed!

Alles wat je maar nodig hebt is hier op loopafstand te vinden: gezellige restaurants en cafés, supermarkt, allerlei winkels, de vrijdagmiddagmarkt én de groene omgeving van de dijk met haar uiterwaarden en het ‘Zwanewater’. Ook openbaar vervoer, medische voorzieningen, scholen, opvang en sportfaciliteiten bevinden zich dichtbij. Arnhem en Nijmegen zijn snel te bereiken met fiets, bus of auto.

Indeling:

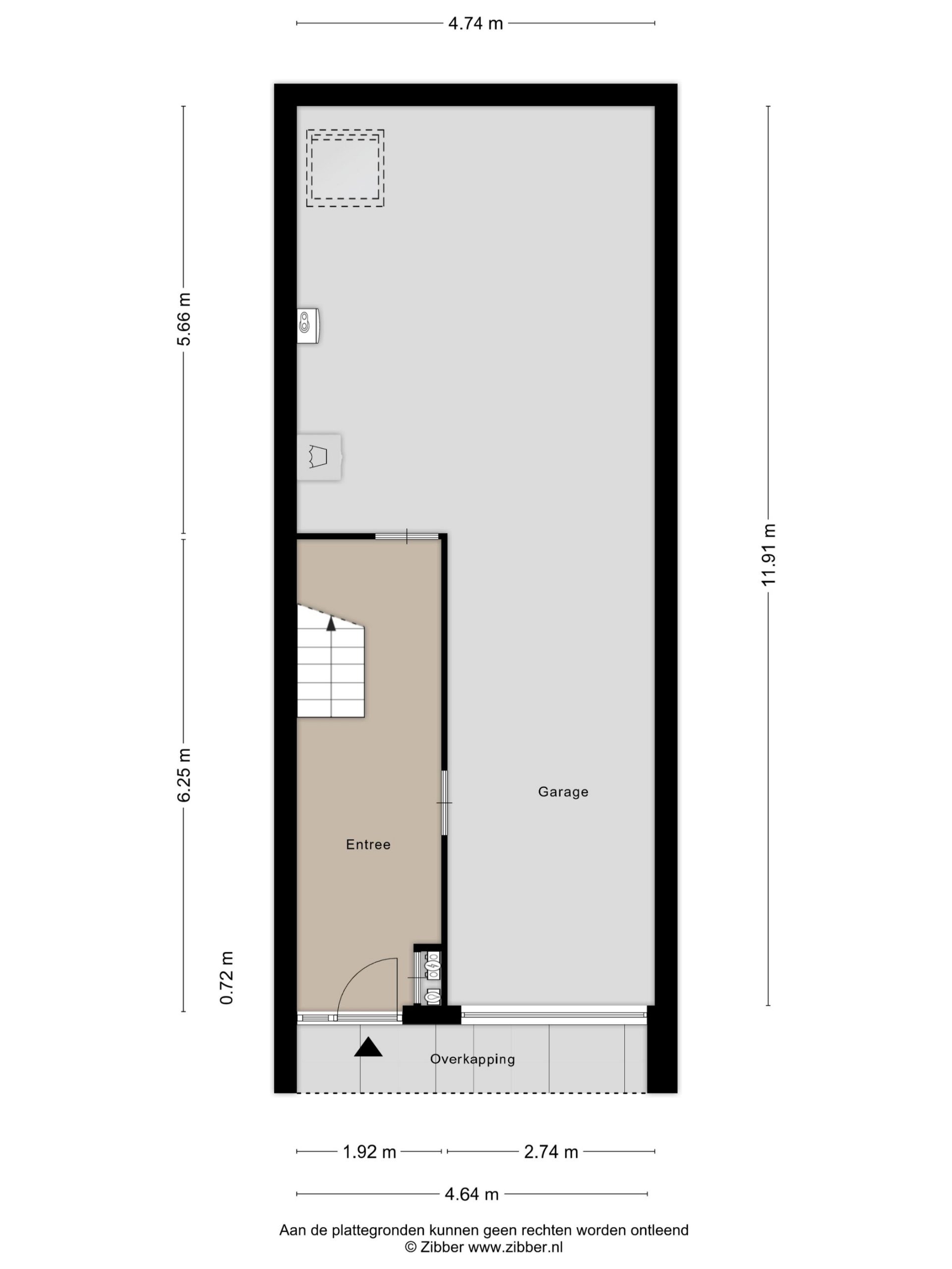
Begane grond: Entree / hal met meterkast (6 groepen, dubbel 220, aardlekschakelaar, glasvezel) / ruime inpandige garage met lichtkoepel, stookruimte (Nefit Combi ketel anno 2020), aansluitingen voor wasmachine en droger, verwarming en elektrische overheaddeur.

1e verdieping: Overloop / toilet met inbouwreservoir en fontein / woonkamer met eiken parketvloer en vrij uitzicht over dijk en uiterwaarden / open keuken met plavuizenvloer voorzien van inductie kookplaat, afzuigschouw, combioven, vaatwasser en koel-vriescombinatie / vanuit de keuken toegang tot het zonnige dakterras op het zuidwesten.

2e verdieping: Overloop / slaapkamer met dakkapel aan de achterzijde / slaapkamer met Velux dakvenster aan voorzijde / ruime slaapkamer met dakkapel aan voorzijde.

* Bouwjaar 1986
* Perceeloppervlakte 88 m²
* Woonoppervlakte ca. 95 m²
* Inhoud ca. 494 m³

Bijzonderheden:
* Schitterend vrij uitzicht vanuit de woonkamer op uiterwaarden – én midden in het centrum van Huissen;
* Twee parkeerplaatsen op eigen oprit;
* Royale garage (ca. 45 m²) met parkeergelegenheid voor meerdere auto’s of hobby’s;
* Rustig gelegen aan de rand van het centrum, maar met alle voorzieningen binnen handbereik;
* Dakterras op het zuidwesten met veel privacy;
* Deze woning is uitermate geschikt voor woon-werken, in het centrum gelegen maar toch net uit de drukte;
* Unieke kans om te wonen met vrij uitzicht aan rand van centrum!

  • 95 m2
  • 88 m2
  • 3

Kenmerken Rijnstraat 21

Overdracht

Vraagprijs€ 449.500,- k.k.
AanvaardingIn overleg

Oppervlaktes en inhoud

Perceel oppervlakte88 m2
Woonoppervlakte95 m2
Inhoud494 m3

Bouw

SoortEengezinswoning
BouwvormBestaande bouw
Bouwjaar1987
Dak typeSamengesteld dak
IsolatievormenDakisolatie, Muurisolatie, Vloerisolatie, Grotendeels dubbelglas
EnergielabelC

Indeling

Aantal verdiepingen3
Aantal kamers5
Aantal slaapkamers3
Aantal badkamers1

Maandlasten

Ligging Rijnstraat 21

Voorzieningen

Centraal gelegen informatie over de buurt

Aantal inwoners

In de gemeente

46.182

Leeftijd

in percentages van totaal

Huishoudsamenstelling

in percentages van totaal

51%

20% NL

32%

20% NL

17%

20% NL

Vergelijkbaar woningaanbod