Ga naar inhoud

Te koop: woonhuis Kruidenstraat 149 6515 HR Nijmegen

Verkocht

€ 795.000,- k.k.

Prachtig aan de rand van Nijmegen Noord gelegen ruime twee-onder-een-kap met sfeervolle tuin op het westen vanwaar prachtig vrij uitzicht over de weilanden en waterpartij.

Indeling:

Begane grond: entree / gang / meterkast / toilet / binnendeur naar schuur. Riante woonkamer (door toevoeging 2/3 van de oorspronkelijke garage) met eikenhouten parketvloer en schuifpui naar vrije tuin, welke bestaat uit een boventuin en benedentuin wat een extra dimensie geeft / eetkeuken met inbouwkeuken voorzien van apparatuur / inbouwkast met water-water aardwarmtepomp welke is aangesloten op de vloerverwarming.

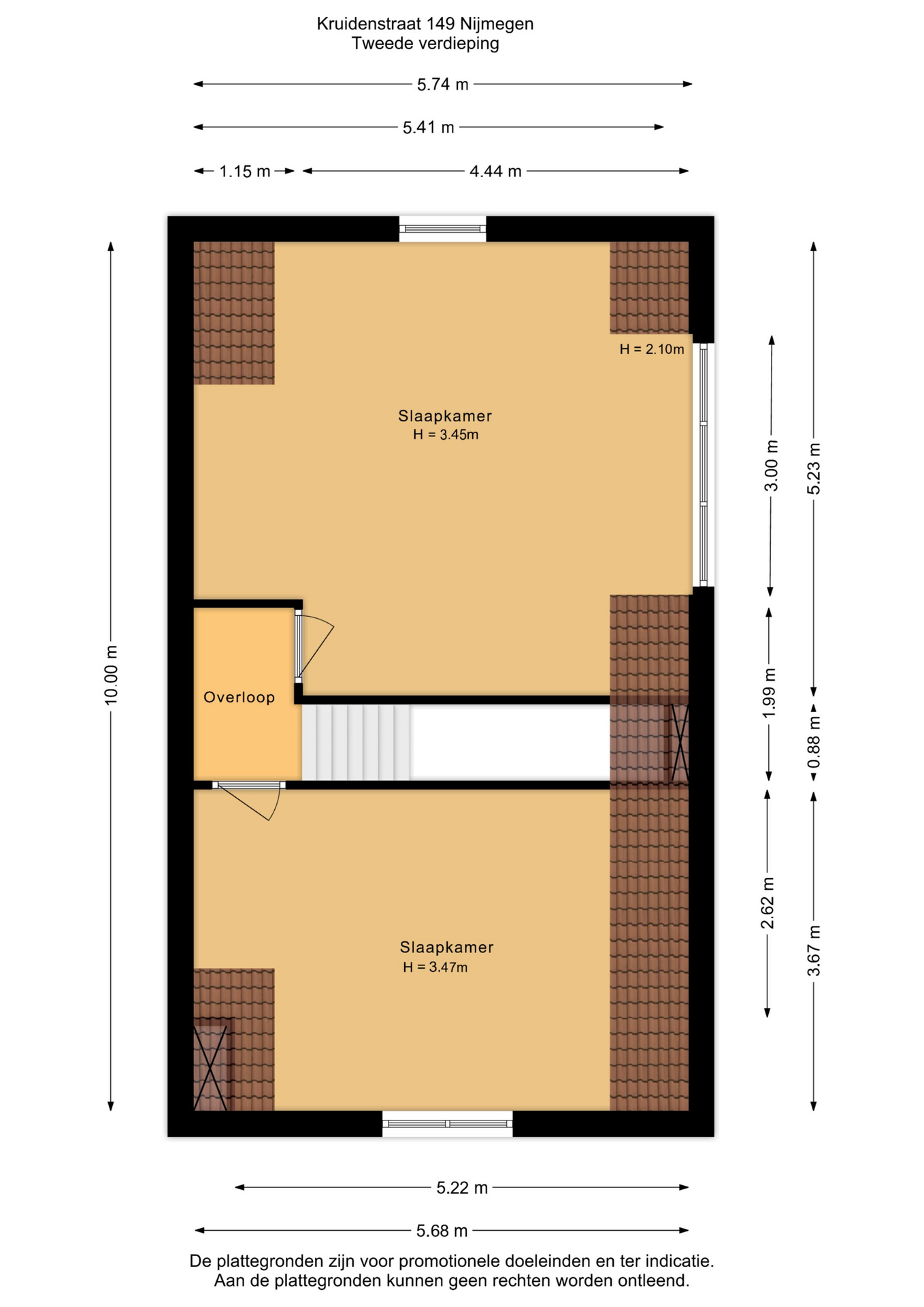
Verdieping: drie slaapkamers / badkamer met ligbad + inloopdouche + dubbele wastafel en tweede toilet / vaste trap naar tweede verdieping:
Overloop: slaapkamer met topgevelraam / vijfde slaapkamer met dakkapel en fraai uitzicht over de weilanden.

Bijzonderheden:
* Woonoppervlak: ca. 185 m2;
* Kavel: ca. 337 m2;
* Voorzien van 30 zonnepanelen;
* In de voortuin is een extra fietsberging voor vier fietsen aanwezig.

  • 185 m2
  • 337 m2
  • 5

Kenmerken Kruidenstraat 149

Overdracht

Vraagprijs€ 795.000,- k.k.
AanvaardingIn overleg

Oppervlaktes en inhoud

Perceel oppervlakte337 m2
Woonoppervlakte185 m2
Inhoud699 m3

Bouw

SoortEengezinswoning
BouwvormBestaande bouw
Bouwjaar2009
Dak typeSamengesteld dak
IsolatievormenDakisolatie, Muurisolatie, Vloerisolatie, Volledig geïsoleerd, HR glas
EnergielabelA+++

Indeling

Aantal verdiepingen3
Aantal kamers6
Aantal slaapkamers5
Aantal badkamers1

Maandlasten

Ligging Kruidenstraat 149

Voorzieningen

Vergelijkbaar woningaanbod