€ 750.000,- k.k.
Aantrekkelijk vrijstaande woonhuis aan de Maas met aanbouw, serre en grote houten schuur.
Begane grond:
Aan de zijde van de Maasdijk, een onder architectuur ontworpen tuin (met een “cour d’élégance”) aangelegd door de hoveniers van Appeltern, vanwaar schitterend vrij uitzicht op en over de Maas. De aanbouw (zuidwesten) met ruime kamer, badkamer en bijkeuken is geschikt voor meerdere doeleinden. Zo is de woning levensloopbestendig, maar ook bijvoorbeeld een bibliotheek, werk- of gastenkamer behoren tot de mogelijkheden. In de goed geïsoleerde aanbouw bevinden zich drie lichtkoepels, kunststof kozijnen in openslaande deuren met HR glas naar de tuin en een kunststof achterdeur eveneens met HR glas. Er is vloerverwarming aanwezig.
Indeling:
Voordeur aan de Rijksweg: entree / gang / toilet / sta-hoge kelder ca. 6 m2 / woonkamer met veel (HR) glas ramen. Open keuken met hardstenen blad, apparatuur, kookeiland met extra kraan, gootsteen en stopcontacten. Aan de woonkamer grenst een ruime serre op het zuidwesten, met aan de binnenkant een op afstandbedienbaar zonnescherm en dimbare spotjes. Bijkeuken met een keukenblad, vloerverwarming, warmwateraansluiting, wasmachineaansluiting en een deelbare kunststof buitendeur met HR glas aan de Maaszijde. Badkamer heeft een lichtkoepel, inloopdouche, wastafel, wastafelmeubel, tweede toilet en vloerverwarming.
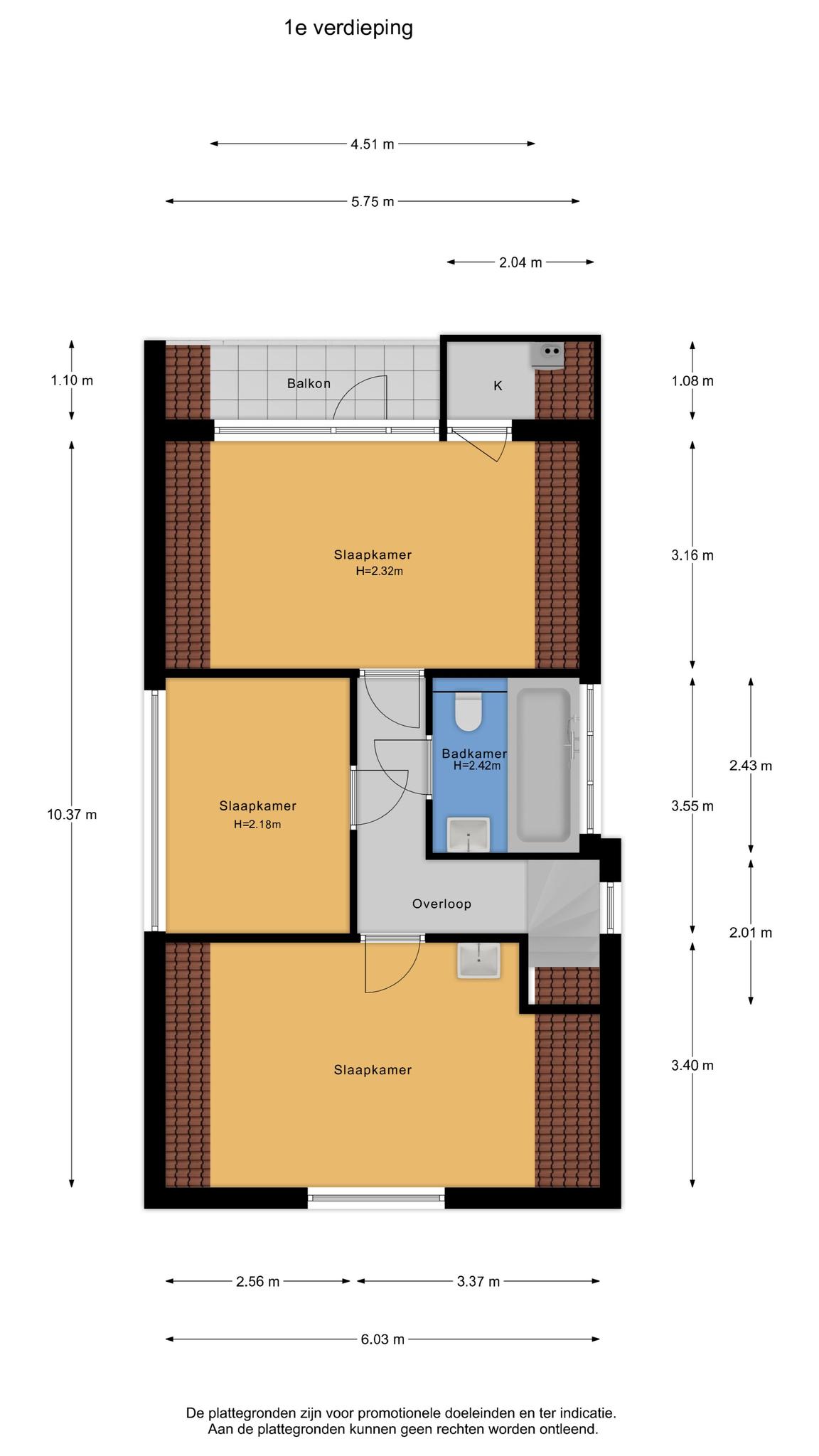
Via de gerenoveerde eikenhouten trap met antislip op iedere trede, bereikt u de eerste verdieping:
Eerste verdieping: drie geïsoleerde slaapkamers / badkamer
* één slaapkamer met kunststof dakkapel met vier draai-/kiep ramen en HR glas. Zijdelings royaal uitzicht op de Maas richting Cuijk;
* één slaapkamer met balkon, houten kozijnen met HR glas en adembenemend uitzicht over de uiterwaarden en de Maas;
* één slaapkamer aan de Rijksweg, wastafel, openslaande HR ramen en houten kozijnen;
* badkamer met zijdelings uitzicht op de fiets- en spoorbrug, met kunststof dakkapel uit 2023 en voorzien van drie draai-/kiep ramen HR glas, gemoffeld marmer op vloer en achterwand van toilet. Bad, wastafel, handdoekradiator en toilet.
Bijzonderheden:
* Mooie ligging met een nooit vervelend uitzicht op de Maas met zijn binnenvaartschepen en pleziervaartuigen;
* Aan de voor- en achterkant van de woning is de tuin afgesloten met metalen sierhekken en poortjes. Aan de Maasdijk is er een groot met transponder bedienbaar draaihek;
* 14 zonnepanelen 2022, hybride warmtepomp februari 2024, bewegingsmelders en diverse identieke buitenlampen;
* Aan de zijkant van de woning bevindt zich een moestuin met o.a. fruitbomen en struikjes. Er zijn verschillende informele zitjes;
* Serre 20 m²;
* Houten schuur 24 m²;
* Woonoppervlak 157 m²;
* Perceel ca. 1000 m².
- 157 m2
- 970 m2
- 4
Kenmerken Rijksweg 30
Overdracht
| Vraagprijs | € 750.000,- k.k. |
|---|---|
| Aanvaarding | In overleg |
Oppervlaktes en inhoud
| Perceel oppervlakte | 970 m2 |
|---|---|
| Woonoppervlakte | 157 m2 |
| Inhoud | 582 m3 |
Bouw
| Soort | Villa |
|---|---|
| Bouwvorm | Bestaande bouw |
| Bouwjaar | 1930 |
| Dak type | Zadeldak |
| Isolatievormen | Dubbelglas, Volledig geïsoleerd, HR glas |
| Energielabel | C |
Indeling
| Aantal verdiepingen | 3 |
|---|---|
| Aantal kamers | 5 |
| Aantal slaapkamers | 4 |
| Aantal badkamers | 2 |
Maandlasten
Ligging Rijksweg 30
Voorzieningen
Centraal gelegen informatie over de buurt
Aantal inwoners
In de gemeente
7.775
Leeftijd
in percentages van totaal
Huishoudsamenstelling
in percentages van totaal
36%
20% NL
36%
20% NL
29%
20% NL