Ga naar inhoud

Te koop: woonhuis Antiloopstraat 38 6531 TP Nijmegen

Verkocht

€ 475.000,- k.k.

Uitgebouwde tussenwoning met flinke tuin op het noordwesten voorzien van achterom, gunstig gelegen in kindvriendelijke wijk “Hazenkamp” tussen universiteit en Goffertpark.

Globale indeling:

Begane grond:
Entree / vestibule / gang / toilet / provisiekelder / uitgebouwde woonkamer met lichtstraat en schuifpui naar tuin / badkamer met douche, wastafel, tweede toilet en wasmachine aansluiting / dichte keuken met inbouw apparatuur.

Eerste verdieping:
Drie slaapkamers, twee grote kamers nu zonder tussenmuurtje en een kleinere kamer / badkamer met douche en wastafel / derde toilet.

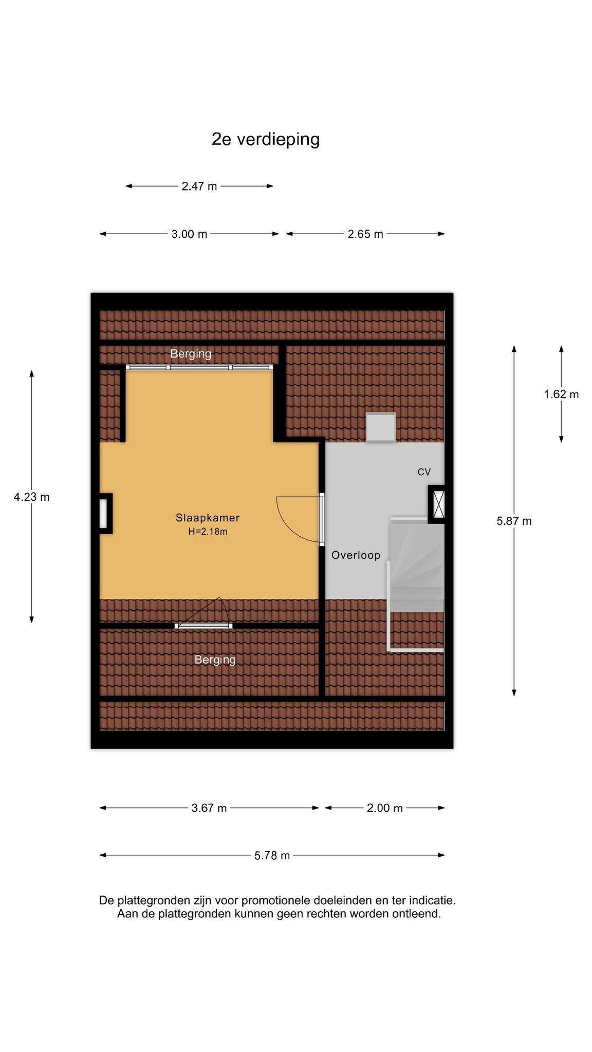
Tweede verdieping:
Vaste trap naar tweede verdieping: voorzolder met cv-ketel (oud), zolderkamer met dakkapel en bergruimte.

Bijzonderheden:
* Woonoppervlakte ca. 128 m² / inhoud ca. 475 m³ / kavel ca. 179 m2;
* Elektrische vloerverwarming; alleen in de badkamer aanbouw;
* Vraag gerust naar de inhoud van bijzondere voorwaarden/clausules zoals ouderdomsclausule, asbestclausule en niet-zelfbewoningsclausule welke van toepassing zijn op deze verkoop;
* Aanvaarding: kan direct.

  • 128 m2
  • 179 m2
  • 3

Kenmerken Antiloopstraat 38

Overdracht

Vraagprijs€ 475.000,- k.k.
AanvaardingIn overleg

Oppervlaktes en inhoud

Perceel oppervlakte179 m2
Woonoppervlakte128 m2
Inhoud476 m3

Bouw

SoortEengezinswoning
BouwvormBestaande bouw
Bouwjaar1960
Dak typeZadeldak
EnergielabelD

Indeling

Aantal verdiepingen4
Aantal kamers4
Aantal slaapkamers3
Aantal badkamers2

Maandlasten

Ligging Antiloopstraat 38

Voorzieningen

Centraal gelegen informatie over de buurt

Aantal inwoners

In de gemeente

173.557

Leeftijd

in percentages van totaal

Huishoudsamenstelling

in percentages van totaal

54%

20% NL

22%

20% NL

23%

20% NL

Vergelijkbaar woningaanbod