Ga naar inhoud

Te koop: woonhuis de Gildekamp 3014 6545 KS Nijmegen

Verkocht

€ 295.000,- k.k.

Verrassend ruime, geschakelde 4-kamer woning met zonnige achtertuin op het zuidoosten en eigen oprit met carport. Het is zelfs mogelijk om een vierde of vijfde slaapkamer te realiseren!

Het huis biedt verschillende mogelijkheden, zo is de zolderverdieping om te bouwen naar een ruime (of twee) slaapkamer(s).

De indeling van de woning is als volgt:

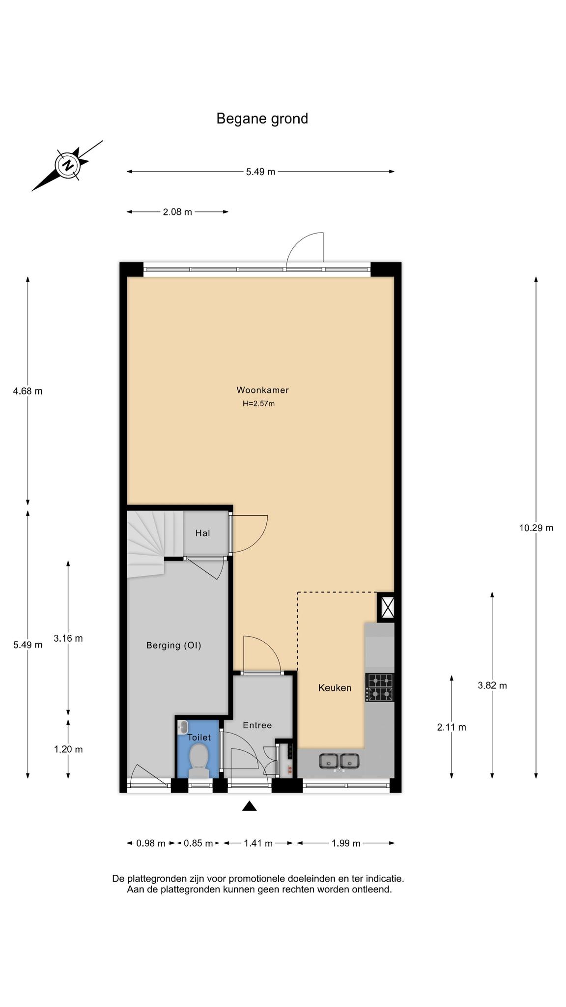
Begane grond:
Via de entree is het toilet en de meterkast te bereiken. Via de gang loopt u naar de woonkamer met open keuken. De woonkamer geeft direct toegang tot de zonnige achtertuin op het zuidoosten met een achterom. Vanuit de woonkamer is de gang bereikbaar waar een grote inpandige berging met eigen buitendeur is, alsmede de trapopgang naar de eerste verdieping.

Eerste verdieping:
De eerste verdieping beschikt over een overloop, een zeer ruime slaapkamer met een mooie hoogte en twee dakvensters, 2 kleinere slaapkamers en een ruime badkamer.

Tweede verdieping:
Via de vaste trap is de zolderverdieping bereikbaar. Deze ruimte is circa 27 m2 groot. In deze zolderkamer hangt de Cv-ketel (2022) en de mechanische ventilatie.

Omgeving:
De woning is gelegen in een rustige, groene en kindvriendelijke wijk. De Gildekamp en de aangrenzende wijken en directe omgeving hebben zeer veel te bieden. In de nabijheid liggen op loopafstand diverse supermarkten, WC-Dukenburg met bibliotheek, een tuin- en gezondheidscentrum en sportverenigingen. Diverse scholen, zowel basis als voortgezet onderwijs zijn op loopafstand bereikbaar. Aan deze wijk ligt een ruim en groen park met sport- en speelfaciliteiten, grenzend aan het Maas-Waal kanaal.

De bereikbaarheid is zeer goed dankzij de ligging van de wijk nabij NS-station Dukenburg, de A50 en de A73 en de invalswegen naar het centrum van Nijmegen. Binnen 15 tot 20 minuten fiets je onder andere naar het centrum van Nijmegen, het Radboud UMC of het Goffertpark.

Bijzonderheden:

* Woonoppervlak ca. 130 m2 inclusief de zolderverdieping. Met slechts een kleine aanpassing (een groter dakraam) kan deze oppervlakte worden meegenomen als woonruimte;
* De woning staat leeg en kan vlot worden overgedragen;
* Energielabel C;
* Zonnige beschutte achtertuin met recentelijk vernieuwde schuttingen;
* Vraag gerust naar de inhoud van bepaalde voorwaarden/clausules zoals de ouderdomsclausule, asbestclausule en niet-zelfbewoningsclausule welke van toepassing zijn op deze verkoop;
* Er is geen lijst van zaken aanwezig.

  • 130 m2
  • 160 m2
  • 4

Kenmerken de Gildekamp 3014

Overdracht

Vraagprijs€ 295.000,- k.k.
AanvaardingIn overleg

Oppervlaktes en inhoud

Perceel oppervlakte160 m2
Woonoppervlakte130 m2
Inhoud444 m3

Bouw

SoortEengezinswoning
BouwvormBestaande bouw
Bouwjaar1981
Dak typeLessenaardak
IsolatievormenDakisolatie, Muurisolatie, Dubbelglas
EnergielabelC

Indeling

Aantal verdiepingen3
Aantal kamers5
Aantal slaapkamers4
Aantal badkamers1

Maandlasten

Ligging de Gildekamp 3014

Voorzieningen

Centraal gelegen informatie over de buurt

Aantal inwoners

In de gemeente

173.557

Leeftijd

in percentages van totaal

Huishoudsamenstelling

in percentages van totaal

36%

20% NL

30%

20% NL

34%

20% NL

Vergelijkbaar woningaanbod