Ga naar inhoud

Bovensteweg 89- 103

6585 KB Mook

Verkocht

€ 525.000,- k.k.

  1. Home>
  2. Bedrijfspanden>
  3. Koop Mook Bovensteweg 89- 103

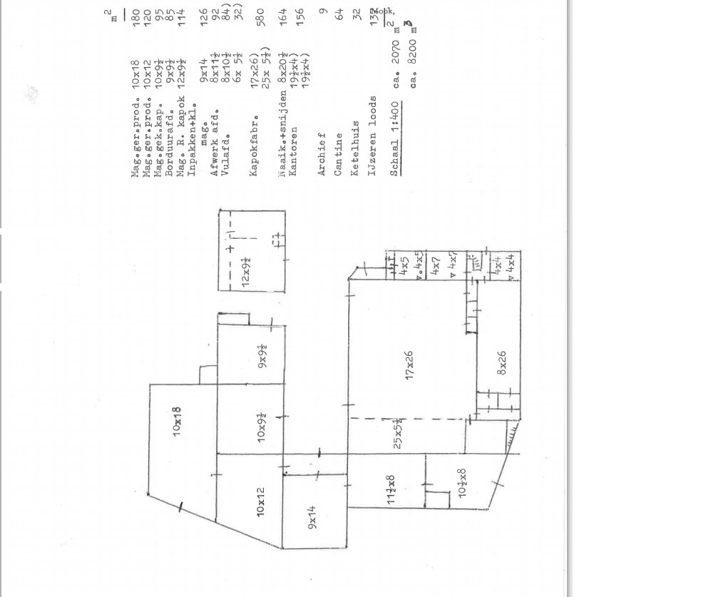
Op bedrijventerrein “Korendal” tussen Mook en Molenhoek aan de bosrand gelegen voormalige matrassenfabriek. De huidige bebouwing is in baksteen opgetrokken en bestaat uit kantoren, bedrijfsruimte, werkplaats en magazijn. Het gebouw beslaat totaal ca. 2000 m² op een bouwkavel van 8333 m². Parkeermogelijkheden op eigen terrein.
De bebouwing is gedateerd en deels als bedrijfsverzamelgebouw verhuurd. Het betreft kortlopende huurcontracten.
Het object is gezien de degelijke bouw van het fabriekspand geschikt voor herontwikkeling, maar ook voor nieuwbouw zijn er vele mogelijkheden.
Het bestemmingsplan voorziet in bedrijven van categorie 3 tot en met categorie 4.2 (zie ruimtelijkeplannen.nl).
Het toegestane bebouwingspercentage van het terrein is max. 80%. Een bedrijfshal van max. 6000 m² met een maximale hoogte van 15 meter valt binnen de mogelijkheden.

Bijzonderheden:
De locatie staat op de nominatie voor herontwikkeling. In het kader van een sterke revitaliseringswens van gemeente en provincie zal er positief meegedacht worden met vele initiatieven.
* Absoluut een kavel met mogelijkheden.
** Het terrein is gelegen op loopafstand van NS station Mook Molenhoek.
*** Het terrein is goed bereikbaar vanaf de A-73.
**** In de koopsom is een stelpost van € 100.000 opgenomen voor sloop-/ en saneringskosten. Als het pand wordt overgenomen “as-it-is” kan de koopsom rond de € 600.000 k.k. zijn. (geen btw)?

Vraagprijs: € 695.000 kosten koper
Aanvaarding: In overleg
Hoofdfunctie: Bedrijfshal
Mogelijke functie: Bouwgrond

  • 8.334 m2
  • 8.334 m2

Kenmerken Bovensteweg 89- 103

Overdracht

StatusVerkocht
Prijs€ 525.000,- k.k.
AanvaardingIn overleg

Oppervlaktes en inhoud

Soort ObjectBedrijfsruimte
Oppervlakte8.334 m2
Perceeloppervlakte8.334 m2
Vloerbelasting2.500 kg p. m2
Bedrijfshal vrije hoogte500 cm

Parkeergelegenheid

Parkeerplaatsen25

Bouw

BouwvormNieuwbouw

Overig

Bedrijfshal in units vanaf2.000 m2
Bouwgrond in units vanaf6.000 m2
LocatieBEDRIJVENTERREIN
Aantal lagen2
Onderhoud binnenMatig tot redelijk
Onderhoud buitenMatig

Ligging Bovensteweg 89- 103

Vergelijkbaar bedrijfsaanbod