Ga naar inhoud

Kruispad 1a

6561 CH Groesbeek

Beschikbaar

Bezichtiging plannen

€ 800,- p.m

  1. Home>
  2. Bedrijfspanden>
  3. Huur Groesbeek Kruispad 1a

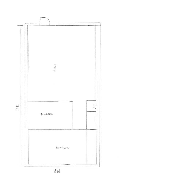
Aan de rand van het centrum van Groesbeek gelegen bedrijfsruimte met kantoorruimte.
Uitermate geschikt voor pakketdienst of om van hieruit onlineverkopen te bezorgen.

Indeling:
Entree, bedrijfsruimte van ca. 95 m2, pantry met keuken en toilet, 2 kantoorruimtes (circa 30m²).

Algemeen:
– Bouwjaar 1938;
– Oppervlakte circa 133 m2;
– Hoogte 4.20m;
– Het dak is voorzien van isolatie;
– Huurprijs € 800,00,- per maand en voorschot stookkosten bedraagt € 150,- per maand;
– Beschikbaar per medio januari;
– Huurovereenkomst conform Kantoor / overige bedrijfsruimte ROZ (7:230a BW).

Huurperiode minimaal 3 jaar, borgstelling 3 maanden huur.

  • 93 m2

Kenmerken Kruispad 1a

Overdracht

StatusBeschikbaar
Prijs€ 800,- p.m
AanvaardingDirect
Servicekosten€ 150,- p.m

Oppervlaktes en inhoud

Soort ObjectBedrijfsruimte
Oppervlakte93 m2
Bedrijfshal vrije hoogte420 cm

Parkeergelegenheid

Geen eigenschappen

Bouw

BouwvormBestaande bouw
Bouwjaar1938
Bouwjaar toelichting

Overig

Bedrijfshal in units vanaf93 m2
LocatieIN_WOONWIJK
Aantal lagen1
Onderhoud binnenGoed
Onderhoud buitenGoed

Ligging Kruispad 1a

Vergelijkbaar bedrijfsaanbod